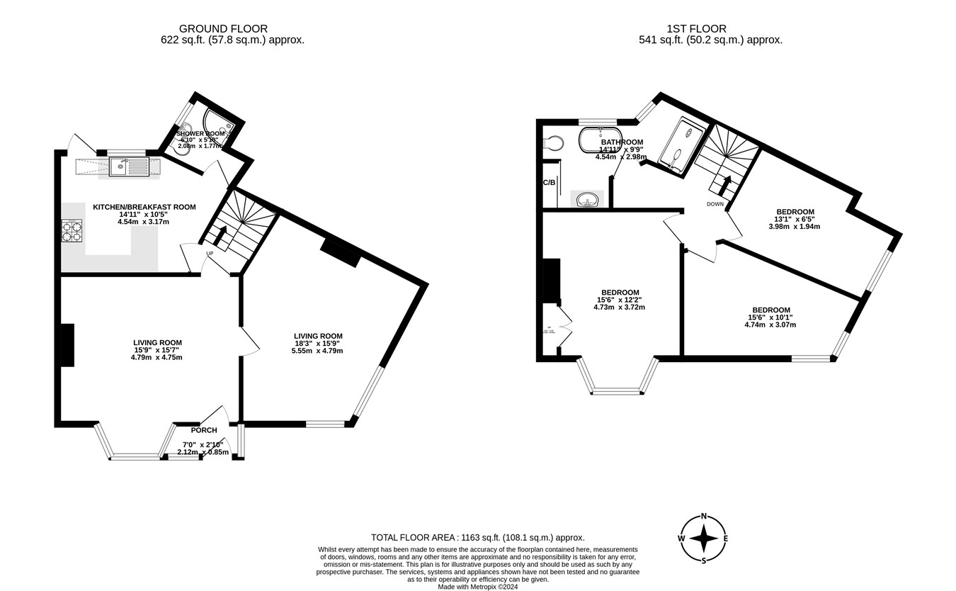
'The Corner Cottage' is one of Budleigh Salterton's most recognisable and unique residences, enjoying a unique location in the heart of the town whilst affording side views of the beach and sea front.
The position enjoys a level approach and is just a short walk from the sea front, High Street and all of the town’s amenities.The double fronted, characterful property benefits from appealing period features including, lovely bay windows and attractive woodwork. The elegant and spacious accommodation is cleverly designed to take advantage of the sea peeps, southerly orientation and pleasant outlook over the town
'The Corner Cottage' is approached via fully enclosed private front garden enjoying a southerly aspect with well stocked borders. However this area could be converted to provide private parking, precedents have been set in the immediate area (planning consents would need to be obtained). To the rear is a fully enclosed ...
Read more
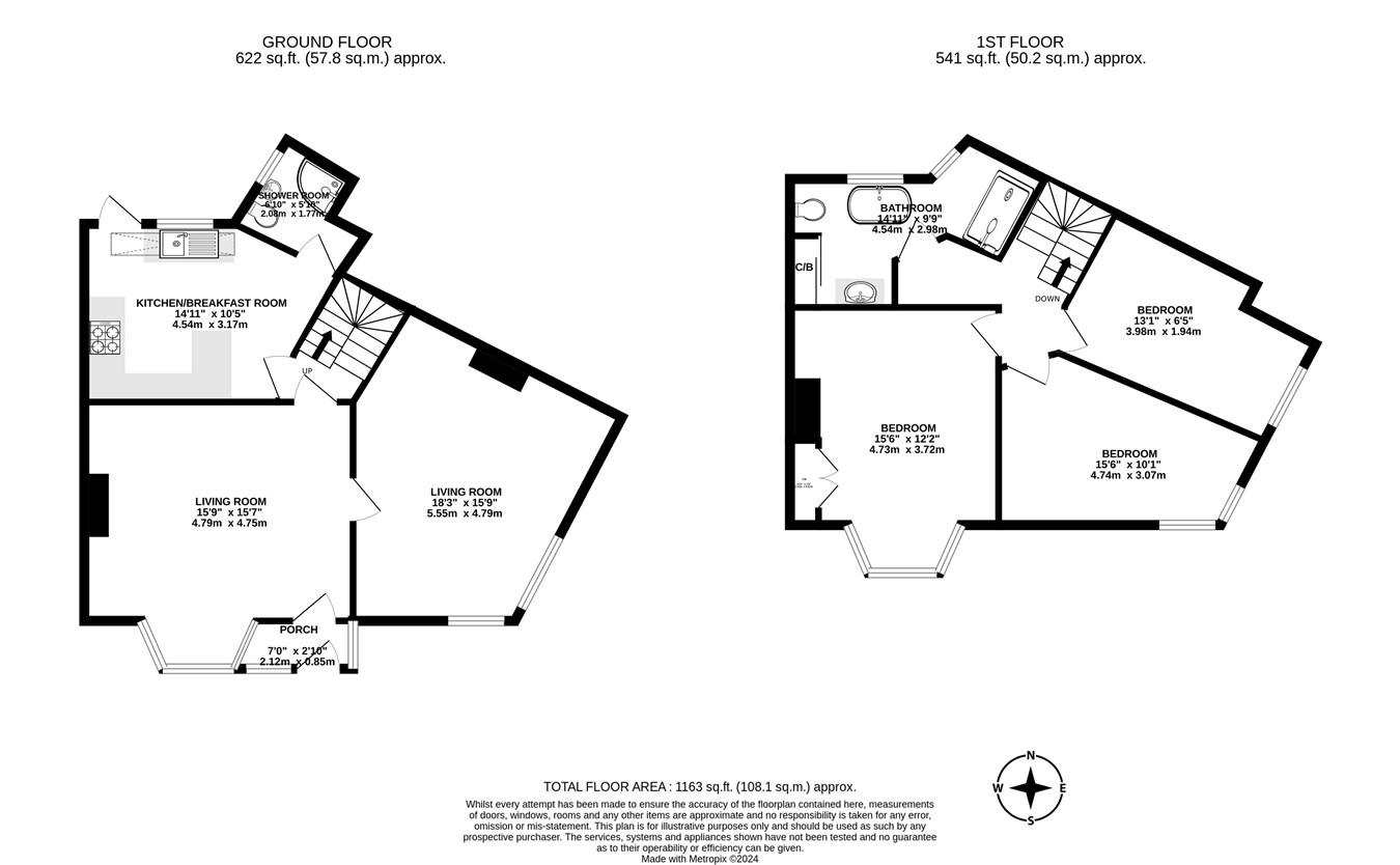
'The Corner Cottage' is one of Budleigh Salterton's most recognisable and unique residences, enjoying a unique location in the heart of the town whilst affording side views of the beach and sea front.
The position enjoys a level approach and is just a short walk from the sea front, High Street and all of the town’s amenities.The double fronted, characterful property benefits from appealing period features including, lovely bay windows and attractive woodwork. The elegant and spacious accommodation is cleverly designed to take advantage of the sea peeps, southerly orientation and pleasant outlook over the town
'The Corner Cottage' is approached via fully enclosed private front garden enjoying a southerly aspect with well stocked borders. However this area could be converted to provide private parking, precedents have been set in the immediate area (planning consents would need to be obtained). To the rear is a fully enclosed private courtyard garden with pedestrian access to Poplar Row.
Recent refurbishment works carried out include:
Replacement of main roof in natural slate and including all lead work - 2016
Replacement of rear roof in natural slate and including all lead work - 2020
All the following improvements were completed in 2020:
Remove and rear render, all external walls front and rear
Replace gutters and downpipes
External decoration front and rear
New Upvc windows throughout, front and rear
New Porch and pitched slate roof
New glazed roof, rear kitchen
Electrical re wiring of house, throughout
Re plumbing and new central heating system throughout
New bathroom and power shower
New shower room and power shower
New Kitchen and appliances
New Log burner
Re plastering of ground floor walls and first floor front wall (bed 2and 3)
Re plastering kitchen ceiling
Re plastering bathroom ceiling
Re decorate internally throughout
New carpets throughout
New flooring to bathroom and shower room
New door handle throughout
New light fittings throughout
New slabs laid to front garden and rear courtyard
The cottage is a desirable place to live and ideal for year round living, however the property would also appeal to those looking for a charming second home / seaside retreat.
Directions
On entering Budleigh Salterton, head down the High Street towards the sea front. 23 Fore Street can be found on the left hand side, on the corner of Fore Street and Fore Street Hill.
Agent's Notes
The property is offered for sale freehold, by private treaty.
The property is offered for rent for a minimum 6 month tenancy- not suitable for pets/ children/ smokers or sharers.
All mains gas, drainage, water and electric are connected to the property.
Gas fired central heating and double glazed window units throughout.
Council Tax Band G- £3512.76 for 2022- 2023.
Local Authority- East Devon District Council.
EPC Rating – D (64/88).
Read less