A mid- terrace house that affords well proportioned and bright accommodation, situated in a quiet and popular residential area, close to The Green and within ½ a mile of the Town centre and sea front. The property is in close proximity of the local bus routes, whilst being just a few hundred yards from the local shop and St Peter’s Primary School, both of which may be approached without crossing any major roads. There is nearby access to Kersbrook valley and the attractive footpath running along the old railway line, which provides a convenient approach to White Bridge and excellent walking along the beautiful River Otter which is only ¼ away.
Key features:
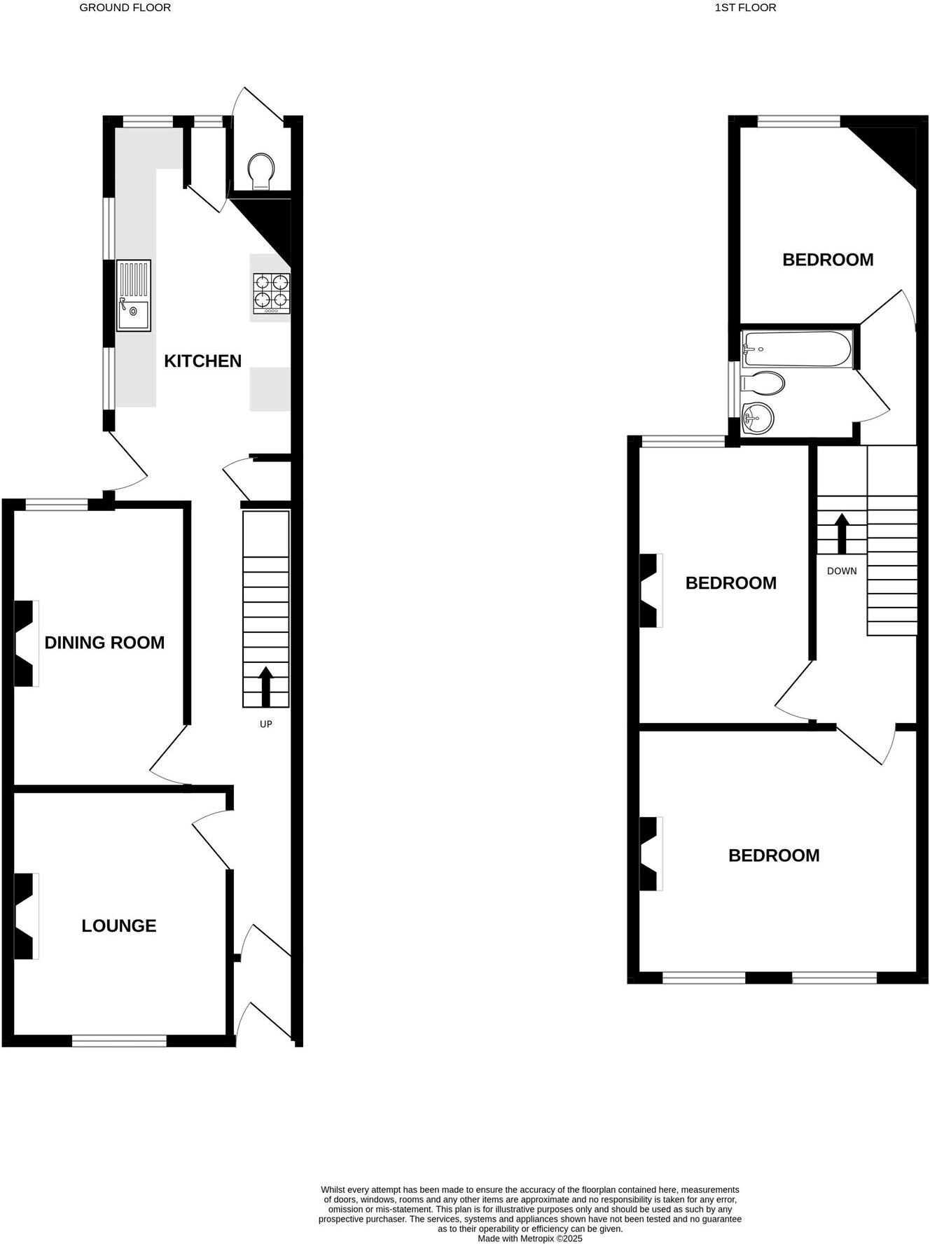
Entrance Vestibule & Reception Hall
Lounge
Separate Dining Room
Attractive Kitchen/Breakfast Room
Three First Floor Bedrooms
First Floor Bathroom/WC
Gas Central Heating
uPVC Double Glazed W...
Read more
A mid- terrace house that affords well proportioned and bright accommodation, situated in a quiet and popular residential area, close to The Green and within ½ a mile of the Town centre and sea front. The property is in close proximity of the local bus routes, whilst being just a few hundred yards from the local shop and St Peter’s Primary School, both of which may be approached without crossing any major roads. There is nearby access to Kersbrook valley and the attractive footpath running along the old railway line, which provides a convenient approach to White Bridge and excellent walking along the beautiful River Otter which is only ¼ away.
Key features:
Entrance Vestibule & Reception Hall
Lounge
Separate Dining Room
Attractive Kitchen/Breakfast Room
Three First Floor Bedrooms
First Floor Bathroom/WC
Gas Central Heating
uPVC Double Glazed Windows
Enclosed Courtyard Rear Garden
Convenient Location In Sought After Town
THE ACCOMMODATION COMPRISES: uPVC front door with double glazed patterned window inset giving access to:
ENTRANCE VESTIBULE: With high level electric meter and electric consumer unit; solid wood inner door with glazed panelled window inset giving access to:
RECEPTION HALL: With stairs rising to the first floor landing with useful storage cupboard beneath housing the gas meter; radiator; thermostat control for Central Heating; ceiling light; power points; smoke detector.
LOUNGE: 3.61m x 3.28m (11'10" x 10'9") Measurement into alcove; an attractive room with uPVC double glazed window to front aspect; fitted feature fire surround; radiator; central ceiling light; power points; TV point.
DINING ROOM: 4.17m x 2.74m (13'8" x 9'0") Measurement into alcoves; with uPVC double glazed window to rear aspect; period feature fireplace set in wooden mantle surround and tiled hearth; radiator; ceiling light; power points.
KITCHEN/BREAKFAST ROOM: 4.55m x 2.82m (14'11" x 9'3") A spacious room comprising of uPVC double glazed windows to side aspects with solid beech wooden worktop surfaces with matching upstands; inset one and a half bowl stainless steel sink unit with mixer tap over; excellent range of base and eye level drawers and cupboards; space for electric cooker with stainless steel chimney style extractor hood above; space for upright fridge freezer; space for dishwasher; partially tiled splashbacks; plumbing for automatic washing machine; Ideal Logic gas boiler serving domestic hot water and central heating; radiator; vinyl wood effect flooring; walk-in useful pantry with uPVC double glazed obscure window to rear aspect; uPVC patterned glass door to REAR GARDEN.
FIRST FLOOR SPLIT LEVEL LANDING: With large access to roof space; power points; doors leading to:
BEDROOM ONE: 4.39m x 3.63m (14'5" x 11'11") A lovely bright room with two uPVC double glazed windows to front aspect; period fireplace; radiator; central ceiling light; power points; TV point.
BEDROOM TWO: 4.17m x 2.64m (13'8" x 8'8") Into alcove recesses; uPVC double glazed window to rear aspect; period fireplace; radiator; ceiling light; power points.
BEDROOM THREE: 2.84m x 2.72m (9'4" x 8'11") With uPVC double glazed window to rear aspect; further period fireplace; radiator; ceiling light; power points.
BATHROOM/WC: 1.78m x 1.68m (5'10" x 5'6") Fitted with a modern suite comprising bath with mixer tap rainfall shower above; glass shower screen; mirror effect panelling to splash prone areas; W/C with push button flush; pedestal wash hand basin with mixer tap over; mirror fronted cabinet; heated towel rail; pull cord light; extractor fan.
OUTSIDE: To the front of the property there is a garden enclosure with colourful decorative stone flower beds, a wooden pedestrian gate and pathway leads to the front door. To the rear there is an attractive sunny aspect enclosed courtyard garden with brick wall boundaries comprising of stone area with raised seating; shrub beds; access to outside W/C; rear pedestrian gate to service lane.
Directions:
As you head into Budleigh Salterton, turn left at the top of the High Street into Station Road and proceed past The Green on your left hand side. After a right hand bend turn left into Leas Road, and left into Greenway Lane. Boyne Road is the third road on the left hand side. Number 27 can be found on the right hand side.
Read less