A spacious, purpose-built ground floor retirement apartment set within the exclusive development of Stanley Mews. The property is only half a mile from the town centre and sea front of Budleigh Salterton with a bus stop and The Green close by. To qualify as a resident the owner must be 60 years or over.
Number 21 Stanley Mews enjoys one of the finer positions in the development enjoying a southerly orientation, attractive views and direct access to the most pleasant and private section of the communal gardens.
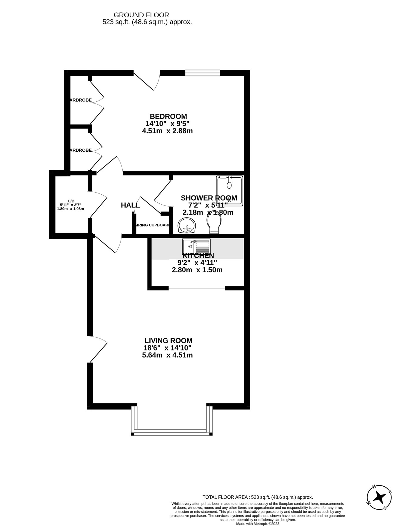
The many benefits include electric heating, uPVC double glazing, large living room, separate kitchen, large double bedroom complete with built in wardrobes, a recently refurbished shower room and W.C. The apartment is being offered for sale with no onward chain.
There is a range of communal facilities including a residents’ lounge, laundry room and guest suite, plus a part time house manager. There are a...
Read more
A spacious, purpose-built ground floor retirement apartment set within the exclusive development of Stanley Mews. The property is only half a mile from the town centre and sea front of Budleigh Salterton with a bus stop and The Green close by. To qualify as a resident the owner must be 60 years or over.
Number 21 Stanley Mews enjoys one of the finer positions in the development enjoying a southerly orientation, attractive views and direct access to the most pleasant and private section of the communal gardens.
The many benefits include electric heating, uPVC double glazing, large living room, separate kitchen, large double bedroom complete with built in wardrobes, a recently refurbished shower room and W.C. The apartment is being offered for sale with no onward chain.
There is a range of communal facilities including a residents’ lounge, laundry room and guest suite, plus a part time house manager. There are alarm cord pulls available in the main rooms which connect to the on-site house manager during working hours and connect to a central monitoring system when the manager is not on-site. Parking spaces are subject to availability.
Agent's Notes:
Mains electricity, water and drainage are connected.
Council Tax Band A.
EPC Rating C - 72 / 76
Tenure:
The property is held on a lease from 1st March 2020 - 28th February 2119. Approximately 95 years remaining
Outgoings:
Ground rent £439.72 per annum. Service charge approximately £1700 per annum. This includes external maintenance of the property and gardens, cleaning and maintenance of communal areas, window cleaning, buildings insurance, water and drainage plus use of the laundry facilities.
Read less
Important Information
- This is a Leasehold property.