A wonderful house at the end of this charming terrace with babbling brook running in front and beautiful gardens mainly to the rear, the well proportioned rooms briefly comprise Sitting Room, Dining Room, Modern Kitchen, Three Double Bedrooms, Modern Bathroom. Viewing is a must to appreciate the fantastic location and accommodation on offer. Plans for an attic conversion which include a double bedroom with en-suite have been approved and are available to view. East Devon Planning Reference- Reference 25/1451/FUL
The picturesque village of East Budleigh is an Area of Outstanding Natural Beauty, just two miles from the Jurassic Coast at Budleigh Salterton. The village offers a range of essential amenities, including a community shop, primary school, village hall, the historic Sir Walter Raleigh pub, and Walt`s Coffee Shop. Additional services can be found in nearby Budleigh Salterton.
The nearest cathedral city, Exeter, is...
Read more
A wonderful house at the end of this charming terrace with babbling brook running in front and beautiful gardens mainly to the rear, the well proportioned rooms briefly comprise Sitting Room, Dining Room, Modern Kitchen, Three Double Bedrooms, Modern Bathroom. Viewing is a must to appreciate the fantastic location and accommodation on offer. Plans for an attic conversion which include a double bedroom with en-suite have been approved and are available to view. East Devon Planning Reference- Reference 25/1451/FUL
The picturesque village of East Budleigh is an Area of Outstanding Natural Beauty, just two miles from the Jurassic Coast at Budleigh Salterton. The village offers a range of essential amenities, including a community shop, primary school, village hall, the historic Sir Walter Raleigh pub, and Walt`s Coffee Shop. Additional services can be found in nearby Budleigh Salterton.
The nearest cathedral city, Exeter, is easily accessible and offers a variety of shopping options, along with rail links to Paddington and Waterloo, access to the M5 at Junction 30, and Exeter International Airport.
East Budleigh is a highly sought-after location, offering the perfect balance of rural charm and modern convenience.
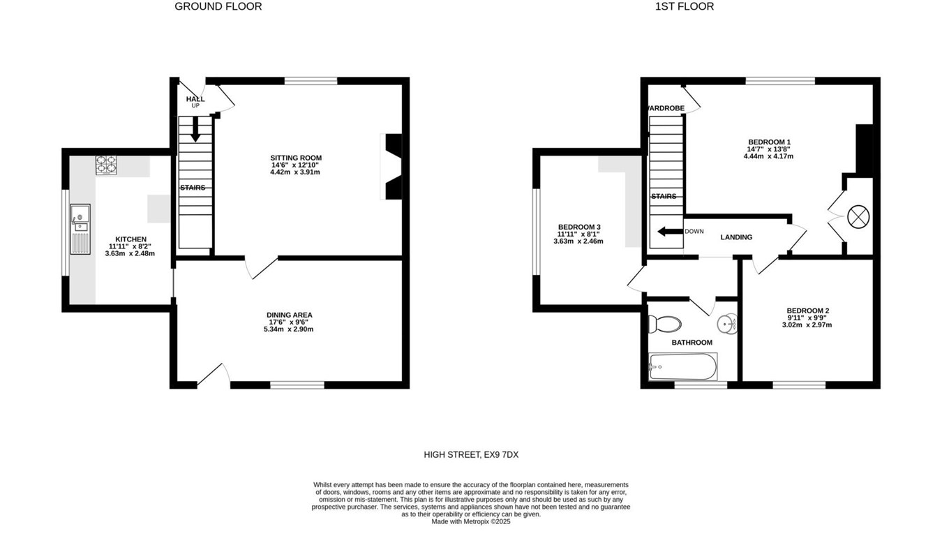
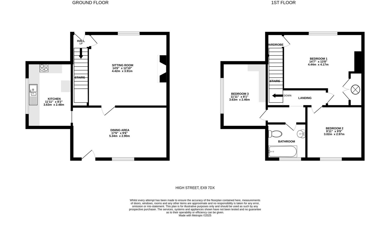
The accommodation comprises (all measurements are approximate):
Entrance Hall
Stairs leading to first floor, door to:-
Sitting Room - 14`6" x 12`10" (4.42m x 3.91m)
Lovely bright room with double glazed window overlooking the front, log burner, door to understairs cupboard.
Dining Room - 17`6" x 9`6" (5.33m x 2.90m)
Large window overlooking the rear garden, tiled floor, radiator, recess for appliance and storage, door onto the rear garden, opening through to-
Kitchen - 8`2" x 11`11" (2.48m x 3.63m)
Large window overlooking the side garden, worktop surface with composite sink and drainer with mixer tap, range of cupboards and drawers under, 5 ring gas hob with electric oven under and stainless steel extractor over, matching range of eye level cupboards, integrated fridge/freezer, integrated dishwasher, integrated washer/dryer, large corner larder style cupboard, tiled floor.
First Floor Landing
Doors to:-
Bedroom 1 - 14`7" x 13`8" (4.45m x 4.17m)
Double glazed window to front, large built-in cupboard, built-in wardrobe to one side of alcove, radiator.
Bedroom 2 - 9`11" x 9`9" (3.02m x 2.97m)
Upvc double glazed window overlooking the rear garden, radiator.
Inner Hallway
Hatch to loft, doors to:-
Bedroom 3 - 8`1" x 11`11" (2.46m x 3.63m)
Window to side, radiator, hatch to loft.
Bathroom
Upvc double glazed window to the rear, modern white suite comprising panelled bath with mains fed shower over, pedestal wash hand basin, low level W.C.
Outside
The front of the property is approached via a path which continues to the other cottages, there is a wooden gate to the rear garden which is mainly laid to lawn with a greenhouse and large storage shed.
Agents Note
A right of way exists between 2 and 4 High Street allowing the residents access to the front path. Right of access is also permitted to the rear garden of 4 High Street (although we are informed rarely used as they have separate access).
Tenure - Freehold
Council Band - D - £2316.28
What3words: ///bathtubs.hippy.speakers
Read less